交底内容:
1、 作业条件:管沟定位放线完毕,没有妨碍管沟基础施工的障碍物。
2、 施工准备:
2.1人员准备:钢筋工10人,木工10人,砼工5人,小工8人
2.2机具准备:挖掘机、铁锹、羊镐、打夯机、振捣棒、刮杠、抹子
2.3材料准备:螺杆、钢管、方木、木胶板
3、 施工内容:
管沟布置见管沟平面布置图。
管沟为Ⅱ管沟,管沟详图见国标02J331地沟及盖板图集P41,P15页。
3.1管沟开挖:土方施工
先根据管沟平面布置图用白灰画出开挖上口线,开挖边从垫层边外扩200mm,基础基坑采用机械开挖,人工修整,基础立面铁铲修平,底面素土用打夯机夯实两遍,压实系数不得小于0.94。尤其注意底角底边处。
3.2钢筋砼施工
每20米为一个施工浇筑段。钢筋规格及做法按国标02J331地沟及盖板图集P15页进行加工下料,钢筋加工好后,按02J331图集要求进行插筋绑扎。吊环加工不得采用冷加工钢筋。砼浇筑分三次完成先垫层,后底板,最后为墙体。砼标号垫层为C15,其他均为C25,墙体采用现浇方式施工,管沟盖板为C25预制钢筋砼盖板,采用1:2水泥砂浆勾缝。做法尺寸配筋详见国标02J331地沟及盖板图集P41。盖板采用方木木胶板定型制作,制作场地85-86#楼东边空地上。材料到位后立即进行预制。盖板加工前板底整平夯实,铺设薄膜,进行砼浇注时采用振捣棒平行振捣,后应进行浇水养护,保证砼质量。管沟盖板必须养护一周后才能使用。通气孔必须预埋好后在进行浇筑砼,接缝处采用止水带塞缝。
3.3模板施工
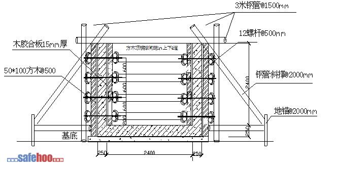
模板采用15mm厚木胶合板,管沟外墙用钢管和50mm×100mm方木作为龙骨,卡扣进行加固。两内墙中间用方木作为顶杆撑,上下共四道,横向间距为1米。螺干竖向间距同方木顶杆撑,横向间距为0.5米。详见下图:

桥梁工程安全技术总交底
全套建筑施工安全技术交底汇总
施工作业安全技术交底大全
全套隧道安全技术交底
装饰装修安全技术交底
全套消防安全技术交底记录
分部分项工程安全技术交底(通用)
节假日安全技术交底
混凝土施工技术交底
砖砌体施工技术交底
外脚手架拆除安全技术交底
人工挖孔桩安全技术交底
施工现场用电安全技术交底
土方开挖工程技术交底
建筑施工安全技术交底汇总
高空作业施工安全技术交底